Nieuwbouw Woningen » Villa » Aspe » P
Roka Invest
Ref.: ANS-22861

Aspe · Poligono 19 Villa · Nieuwbouw Woningen

Ref.: ANS-22861

Aspe · Poligono 19 Villa · Nieuwbouw Woningen

Kenmerken

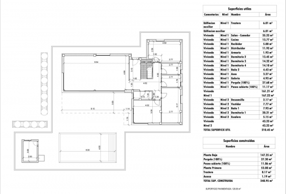
Slaapkamers: 4
Badkamers: 3
Gebouwd: 248m2
Perceel: 13.172m2
Zwembad: Ja
Private pool
Garden
Gated
Near Schools
Number of Parking Spaces: 1
Air Conditioning: Pre-Installed
Parking - Space
Double Bedrooms: 4
Beach: 25000 Meters
Terrace: 38 Msq.
Location: Rural, Mountain
Useable Build Space: 210 Msq.

Beschrijving

Plaats

Vraag voor informatie

Responsable del tratamiento: Roka Invest Spain SL, Finalidad del tratamiento: Gestión y control de los servicios ofrecidos a través de la página Web de Servicios inmobiliarios, Envío de información a traves de newsletter y otros, Legitimación: Por consentimiento, Destinatarios: No se cederan los datos, salvo para elaborar contabilidad, Derechos de las personas interesadas: Acceder, rectificar y suprimir los datos, solicitar la portabilidad de los mismos, oponerse altratamiento y solicitar la limitación de éste, Procedencia de los datos: El Propio interesado, Información Adicional: Puede consultarse la información adicional y detallada sobre protección de datos Aquí.
WhatsApp