Новостройка » Квартира » Orihuela Costa &ra
Roka Invest
Референция: ANS-24363

Orihuela Costa · Playa Flamenca Квартира · Новостройка

Референция: ANS-24363

Orihuela Costa · Playa Flamenca Квартира · Новостройка

Характеристики

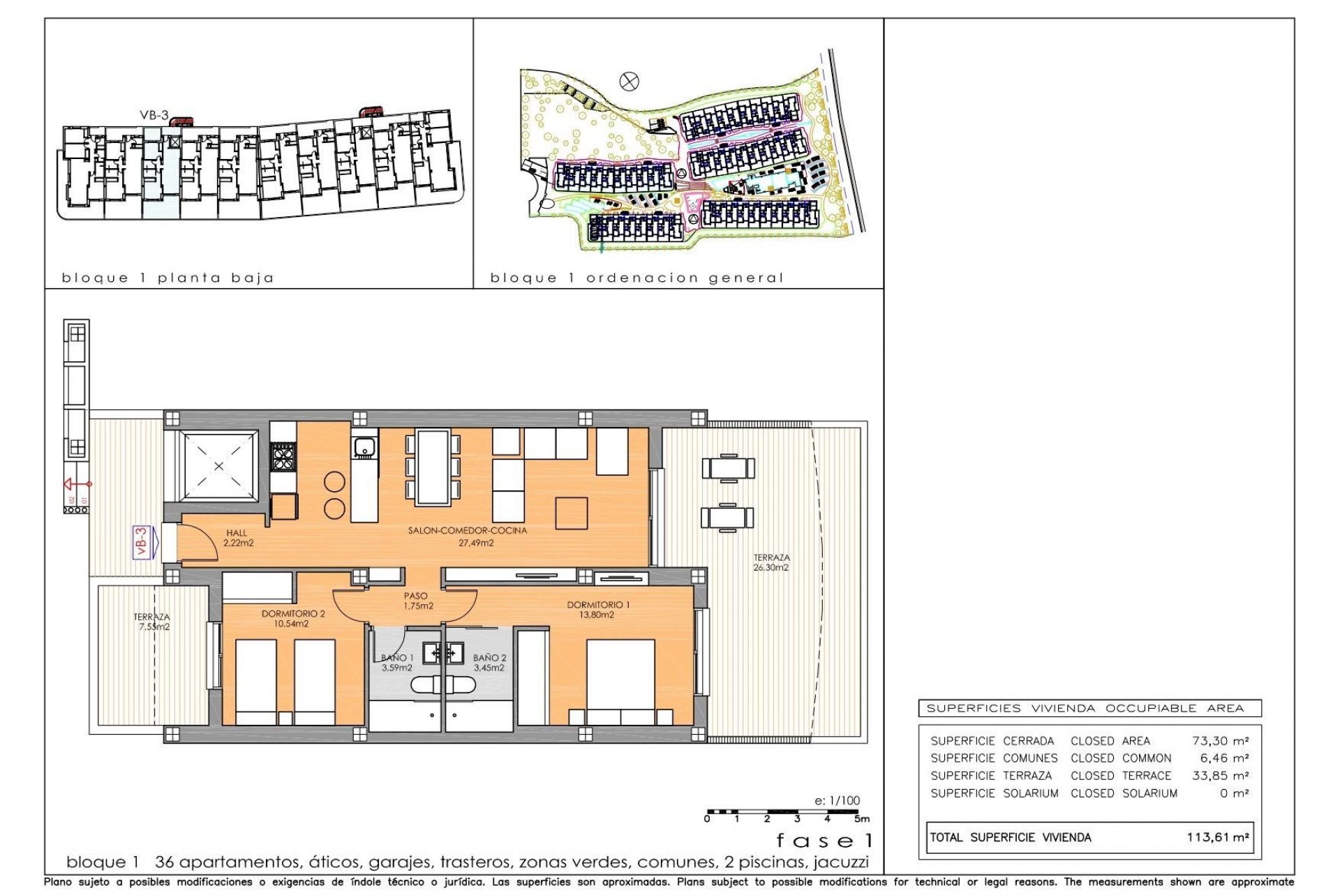
Спальни: 2
Ванные комнаты: 2
Построенные: 73m2
Бассейн: Да
Garden
Elevator/Lift
Communal Pool
Gated
Near Trees
Near Schools
Near Commercial Center
Near Bus Route
Location: Coastal, Urbanisation
Useable Build Space: 63 Msq.
Double Bedrooms: 2
Number of Parking Spaces: 1
Air Conditioning: Pre-Installed
Terrace: 33 Msq.
Parking - Space
Beach: 500 Meters

Описание

Местоположение

Запрос информации

Responsable del tratamiento: Roka Invest Spain SL, Finalidad del tratamiento: Gestión y control de los servicios ofrecidos a través de la página Web de Servicios inmobiliarios, Envío de información a traves de newsletter y otros, Legitimación: Por consentimiento, Destinatarios: No se cederan los datos, salvo para elaborar contabilidad, Derechos de las personas interesadas: Acceder, rectificar y suprimir los datos, solicitar la portabilidad de los mismos, oponerse altratamiento y solicitar la limitación de éste, Procedencia de los datos: El Propio interesado, Información Adicional: Puede consultarse la información adicional y detallada sobre protección de datos Aquí.

Аналогичные варианты

WhatsApp