New build villas in Pinoso on rural plots
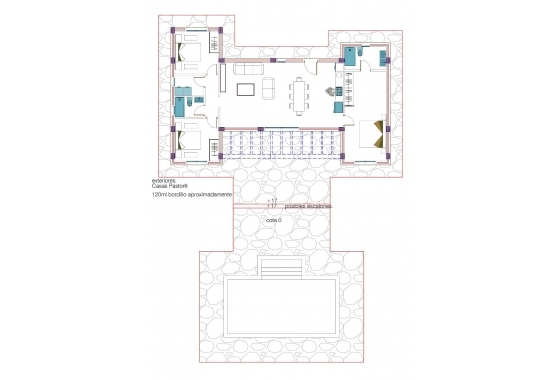
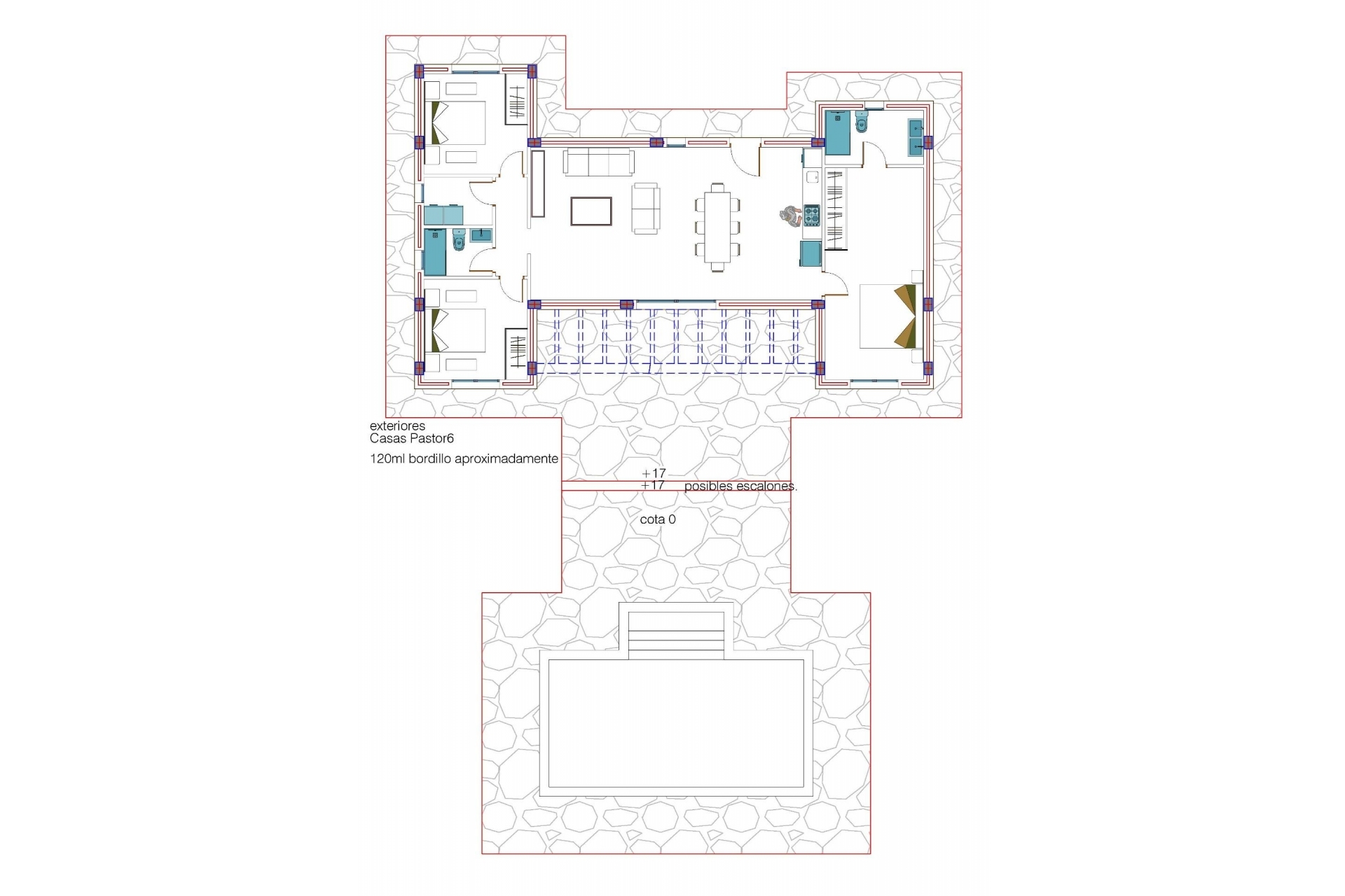
You can choose villas with traditional Spanish touches or super modern, bright and clean finishes. There are several sizes to choose from, with 3 to 6 bedrooms and 1 or 2 floors.
Different legal plots available to choose from (rustic with a minimum of 10,000 m2), some within walking distance of the town, some completely private and the most popular ones are 5-10 minutes' drive from a town. We have a plot to suit every taste, all with stunning views and all with mains water + electricity included in the price and high-speed internet available. The published price includes €30,000 for the plot. If the chosen plot costs more, the difference will be paid.
From the largest and best builder in the area, we use top quality materials for a perfect finish.
All houses include a 2m stamped concrete terrace around the pool (colour and pattern of your choice), 1m around the house, enclosed entrance, 3,000 m² fencing, pre-installation of ducted air conditioning, standard kitchen, security door, German tilt-and-turn windows (or sliding windows if preferred), built-in fireplace (traditional finish), pre-installation of television and internet, gravel path around the house, septic tank.
The bathrooms include shower column, shower tray or bathtub, washbasin units (various colours to choose from) with sinks, taps and mirrors, as well as a large selection of wall tiles.
Wide selection of ceramic floor tiles, in different colours, wood effect, etc.
Kitchens include cupboards with standard doors and handles, stainless steel sink and tap, pre-installation for oven, dishwasher and extractor fan. Choice of several granite worktops. Appliances not included.
Marble staircase (cream, white or grey) and railings included, plus railings for the front porch.
You can customise the house to your liking, most internal changes are free of charge, and you can choose finishes for tiles, kitchen worktops, marble for stairs or shelves, etc. The houses can be extended and we can even build your own design. You can add various extras such as a larger swimming pool, single or double garage, guest house, etc., at an additional cost.
The town of Pinoso is approximately 45 minutes inland from Alicante and the white sandy beaches of the Costa Blanca and close to the border of Murcia, Alicante.
It has a population of just under 8,000. Pinoso, also known as El Pinos, owes its name to the pine trees that cover the mountains in the area. Pinoso offers a rural Spanish lifestyle, with no traffic lights and almost no traffic. Practically the only traffic jams are caused by tractors taking grapes to the winery. The fields are planted with vines, almond trees and olive trees. In February, the fields are filled with pink almond blossoms.
Pinoso has many bars, restaurants and shops, a new 24-hour medical centre, dentists, two primary schools and one secondary school, and a theatre. There is an excellent sports centre with outdoor swimming pools, tennis courts, football pitches and a gym, a library and many other facilities, including a beautiful picnic area among the pine trees, with barbecues, seating areas and running water.